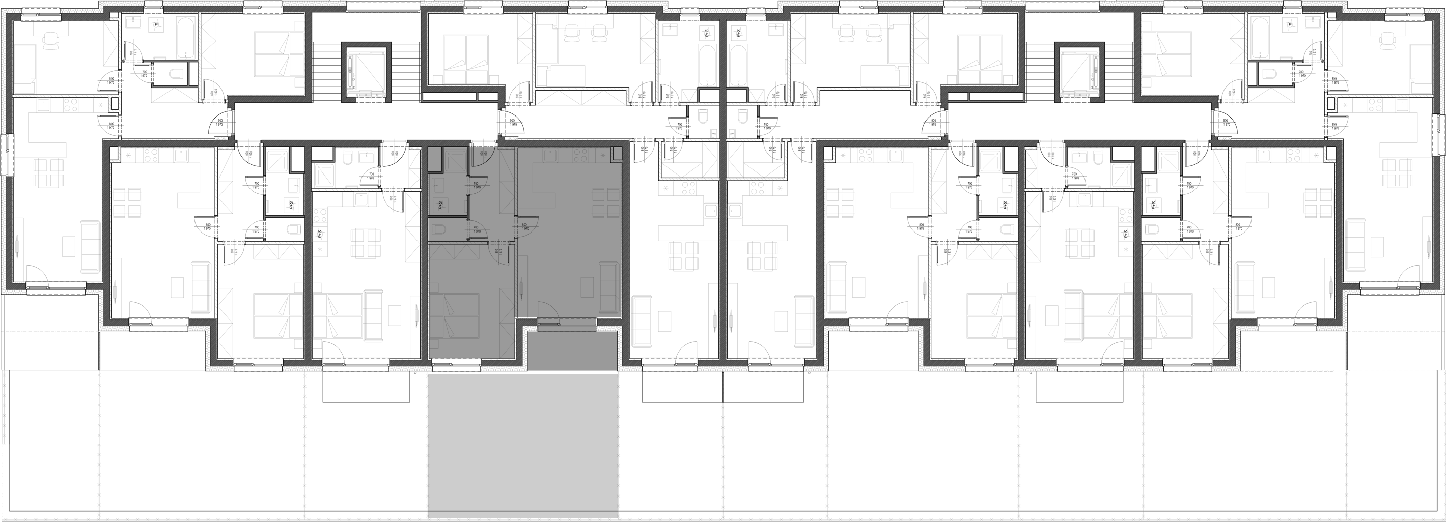
Byt 1.04
POZNÁMKA: Plochy jednotlivých místností jsou pouze orientační s toleranci +/- 3%. Vyobrazené zařízení (kuchyňská linka, el. spotřebiče, vestavěné skříně, nábytek, apod.) není součástí vybavení bytu.
Stav Volný
Podlahová plocha bytu 57.6 m2
Chodba 6,68 m2
Obývací pokoj + KK 27,99 m2
Ložnice 15,44 m2
Koupelna 3,14 m2
WC 1,26 m2
Celková plocha místností 54,51 m2
Terasa 5,58 m2
Předzahrádka 45,23 m2
Sklep v ceně bytu
Venkovní parkovací stání v ceně bytu
Řadová garáž K12
Cena: 4.590.000,- Kč Cena řadové garáže: 599.000,- Kč Cena celkem včetně DPH

Pozice bytu v budově

Pozice bytu 1.04 v budově