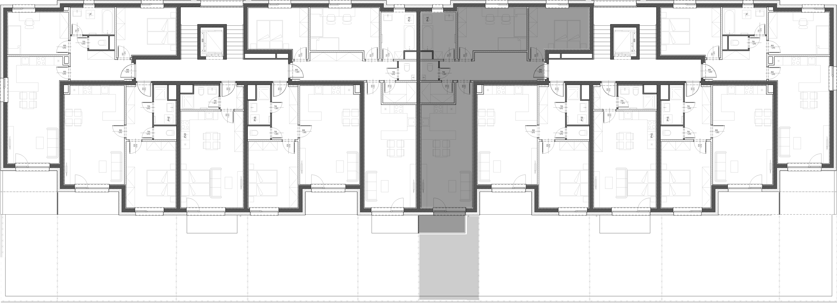
POZNÁMKA: Plochy jednotlivých místností jsou pouze orientační s toleranci +/- 3%. Vyobrazené zařízení (kuchyňská linka, el. spotřebiče, vestavěné skříně, nábytek, apod.) není součástí vybavení bytu.
| Stav | Rezervovaný |
| Podlahová plocha bytu | 81.6 m2 |
| Chodba | 11,61 m2 |
| Obývací pokoj + KK | 27,11 m2 |
| Ložnice | 12,17 m2 |
| Pokoj | 14,53 m2 |
| Šatna | 3,12 m2 |
| Koupelna | 6,84 m2 |
| WC | 1,27 m2 |
| Celková plocha místností | 76,65 m2 |
| Terasa | 4,39 m2 |
| Předzahrádka | 16,60 m2 |
| Sklep | v ceně bytu |
| Venkovní parkovací stání | v ceně bytu |