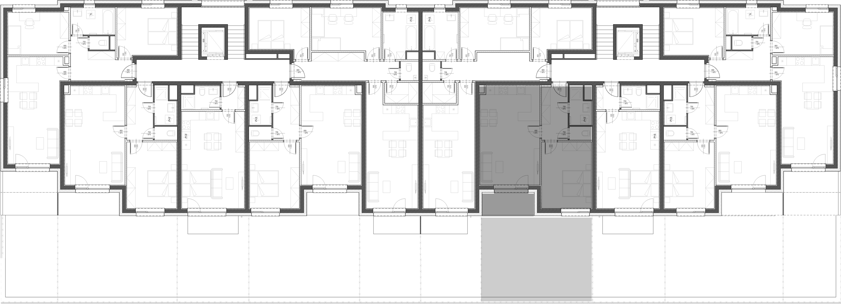
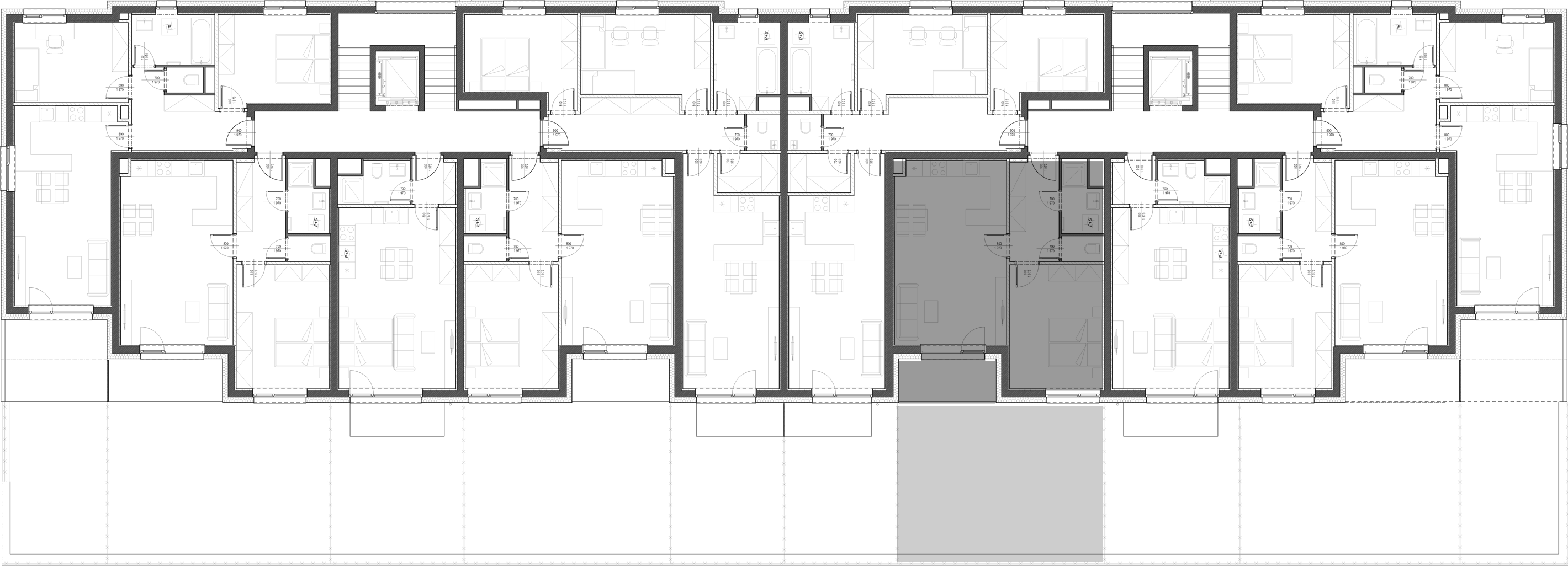
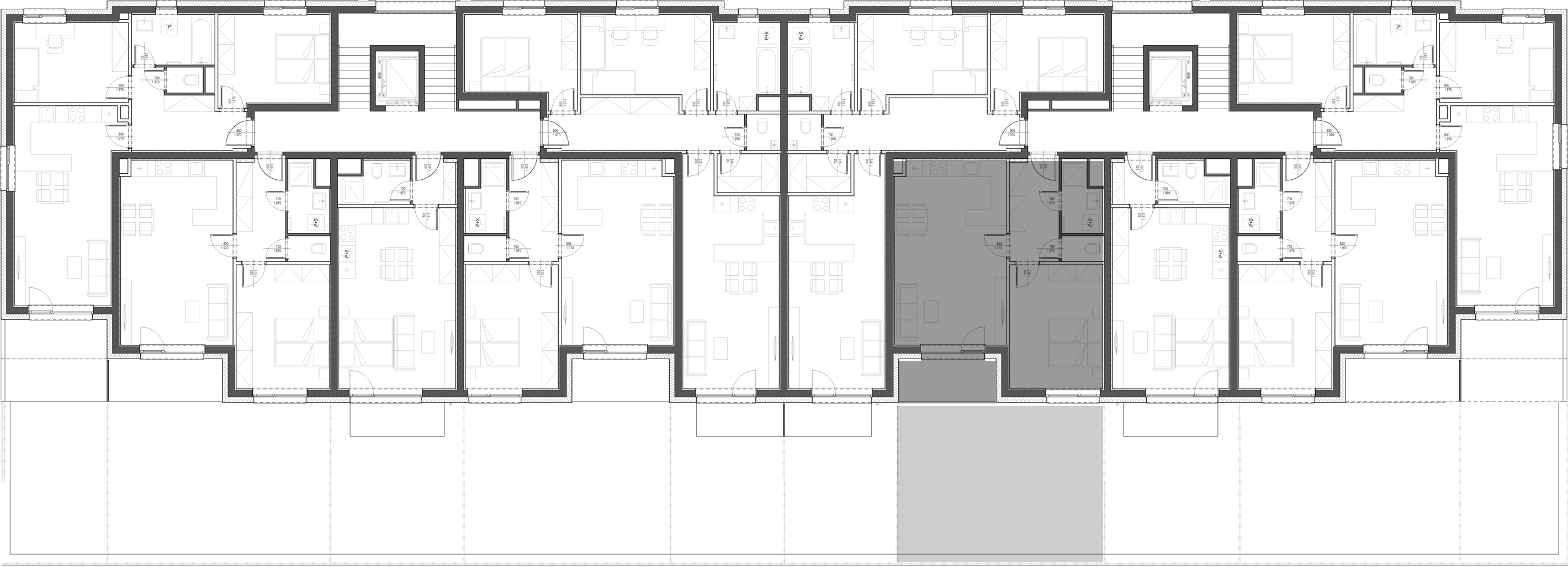
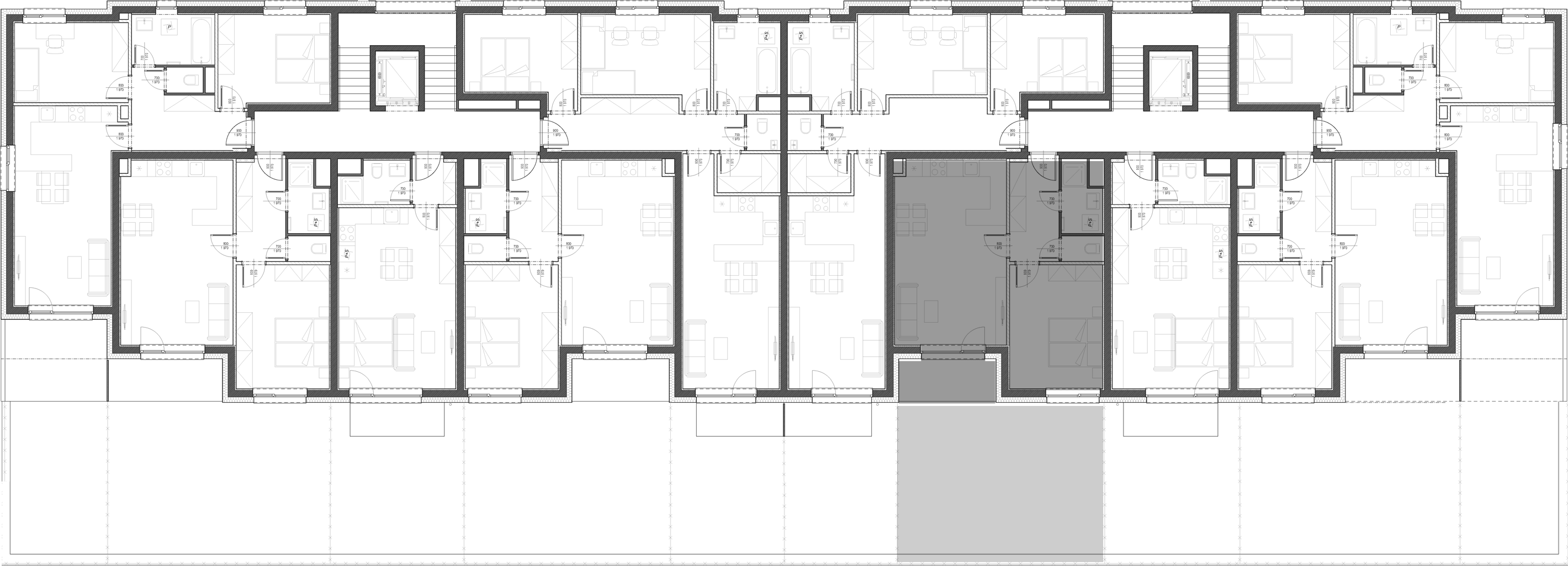
POZNÁMKA: Plochy jednotlivých místností jsou pouze orientační s toleranci +/- 3%. Vyobrazené zařízení (kuchyňská linka, el. spotřebiče, vestavěné skříně, nábytek, apod.) není součástí vybavení bytu.
| Stav | Volný |
| Podlahová plocha bytu | 57.6 m2 |
| Chodba | 6,68 m2 |
| Obývací pokoj + KK | 27,99 m2 |
| Ložnice | 15,44 m2 |
| Koupelna | 3,14 m2 |
| WC | 1,26 m2 |
| Celková plocha místností | 54,51 m2 |
| Terasa | 5,58 m2 |
| Předzahrádka | 45,23 m2 |
| Sklep | v ceně bytu |
| Venkovní parkovací stání | v ceně bytu |
| Chci přikoupit řadovou garáž | Vybrat garáž |
Cena: 4.590.000,- Kč
Cena celkem včetně DPH