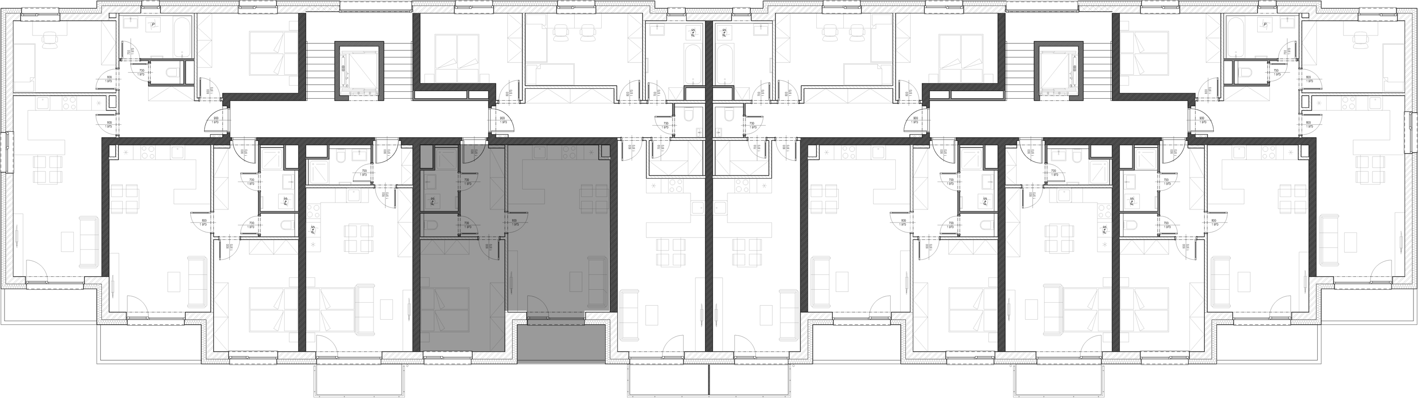
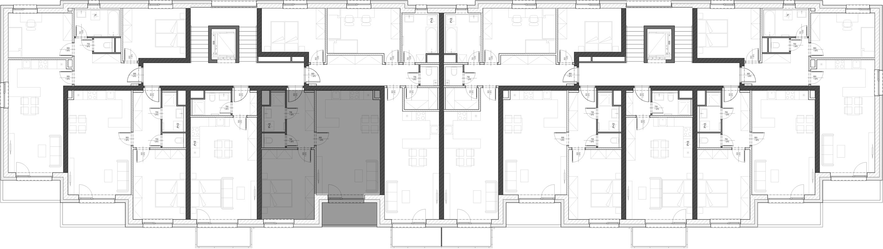
POZNÁMKA: Plochy jednotlivých místností jsou pouze orientační s toleranci +/- 3%. Vyobrazené zařízení (kuchyňská linka, el. spotřebiče, vestavěné skříně, nábytek, apod.) není součástí vybavení bytu.
| Stav | Volný |
| Podlahová plocha bytu | 57.8 m2 |
| Chodba | 6,59 m2 |
| Obývací pokoj + KK | 28,30 m2 |
| Ložnice | 15,56 m2 |
| Koupelna | 3,05 m2 |
| WC | 1,24 m2 |
| Celková plocha místností | 54,74 m2 |
| Lodžie | 5,30 m2 |
| Sklep | v ceně bytu |
| Venkovní parkovací stání | v ceně bytu |
Cena: 4.450.000,- Kč
Cena celkem včetně DPH