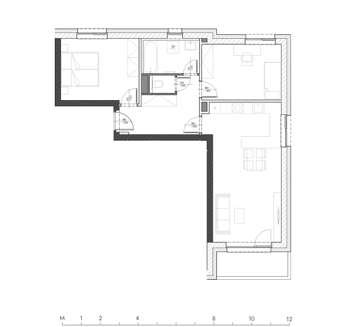
POZNÁMKA: Plochy jednotlivých místností jsou pouze orientační s toleranci +/- 3%. Vyobrazené zařízení (kuchyňská linka, el. spotřebiče, vestavěné skříně, nábytek, apod.) není součástí vybavení bytu.
| Stav | Rezervovaný |
| Podlahová plocha bytu | 71.7 m2 |
| Chodba | 9,16 m2 |
| Obývací pokoj + KK | 27,46 m2 |
| Ložnice | 13,12 m2 |
| Pokoj | 12,14 m2 |
| Koupelna | 5,07 m2 |
| WC | 1,07 m2 |
| Celková plocha místností | 68,02 m2 |
| Balkón | 5,03 m2 |
| Sklep | v ceně bytu |
| Parkovací stání pod objektem | v ceně bytu |