Hlavní stránka
O projektu
Nabídka bytů
Standardy
Financování
Lokalita
Fotogalerie
Kontakt
Zobrazit klasickou verzi
Zobrazit mobilní verzi
Parkování vždy v ceně bytu
Zjistit
více
VÝSTAVBY ETAPY BD C ZAHÁJENA
1.9.2025
Zjistit
více
poslední 2 byty v etapě C na prodej
Zjistit
více
Podpora prodeje
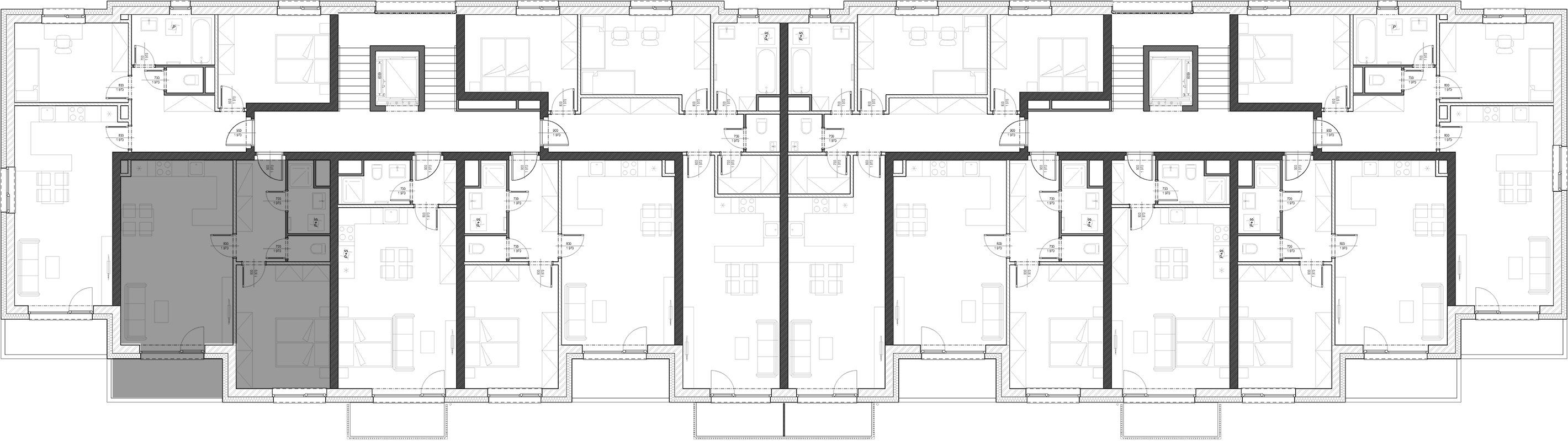
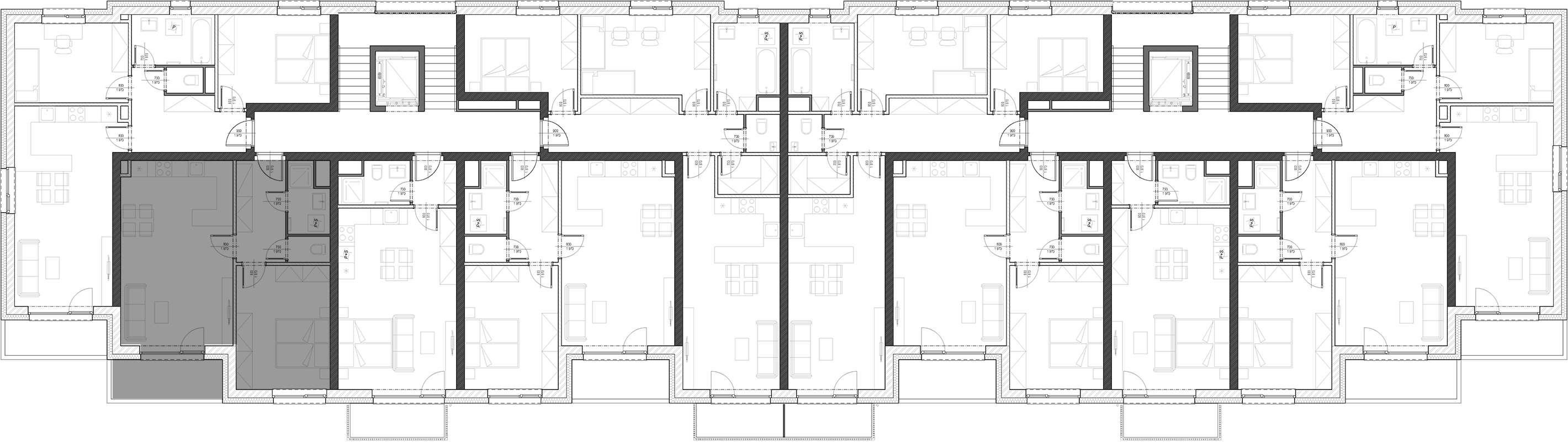
Budova A
|
4. NP.
|
Byt 4.02
Zpět na výběr bytů
Byt je již prodaný.