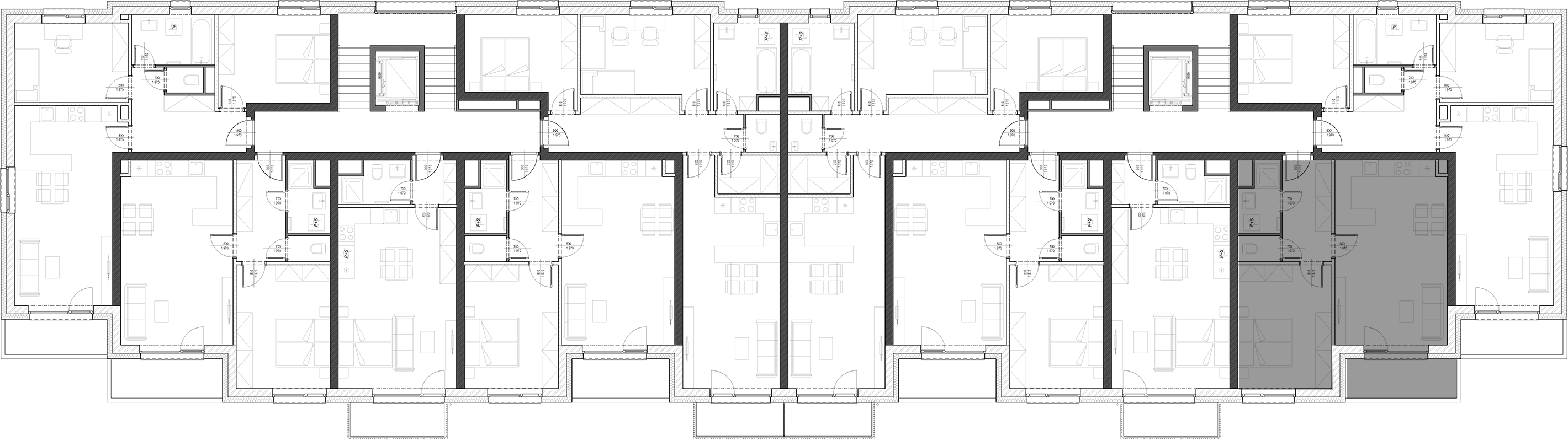
Byt 4.09
POZNÁMKA: Plochy jednotlivých místností jsou pouze orientační s toleranci +/- 3%. Vyobrazené zařízení (kuchyňská linka, el. spotřebiče, vestavěné skříně, nábytek, apod.) není součástí vybavení bytu.
Stav Rezervovaný
Podlahová plocha bytu 57.6 m2
Chodba 6,59 m2
Obývací pokoj + KK 28,14 m2
Ložnice 15,56 m2
Koupelna 3,05 m2
WC 1,24 m2
Celková plocha místností 54,58 m2
Balkón 6,11 m2
Sklep v ceně bytu
Venkovní parkovací stání v ceně bytu

Pozice bytu v budově

Pozice bytu 4.09 v budově