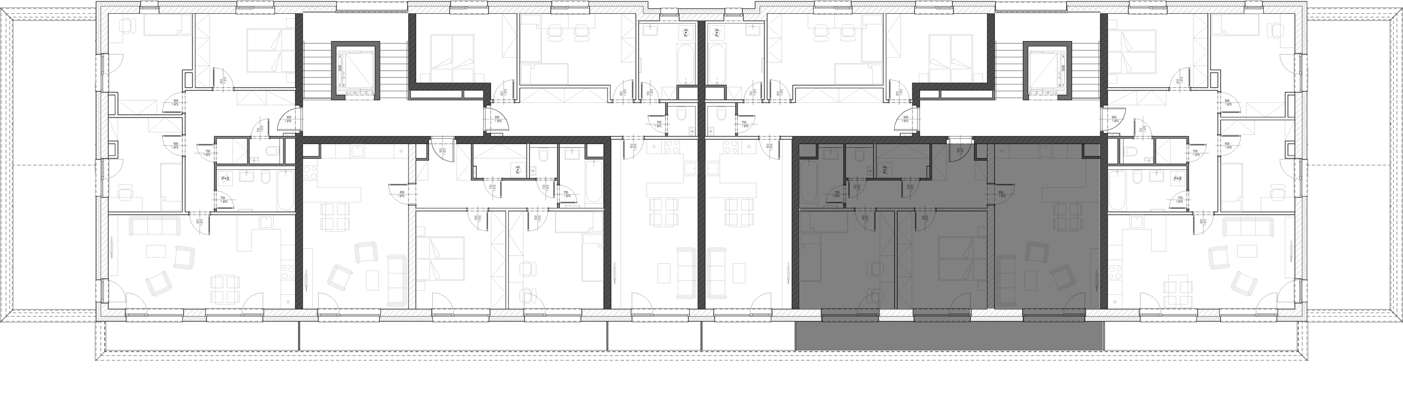
POZNÁMKA: Plochy jednotlivých místností jsou pouze orientační s toleranci +/- 3%. Vyobrazené zařízení (kuchyňská linka, el. spotřebiče, vestavěné skříně, nábytek, apod.) není součástí vybavení bytu.
| Stav | Rezervovaný |
| Podlahová plocha bytu | 84.6 m2 |
| Chodba | 9,59 m2 |
| Obývací pokoj + KK | 29,42 m2 |
| Ložnice | 15,25 m2 |
| Pokoj | 16,11 m2 |
| Šatna | 2,99 m2 |
| Koupelna | 4,06 m2 |
| WC | 1,36 m2 |
| Celková plocha místností | 78,78 m2 |
| Terasa | 15,53 m2 |
| Sklep | v ceně bytu |
| Parkovací stání pod objektem | v ceně bytu |