| Podlaží |
Byt |
Dispozice |
Plocha celkem m2 |
Balkon/terasa m2 |
Parkování v ceně |
Cena s DPH |
Stav |
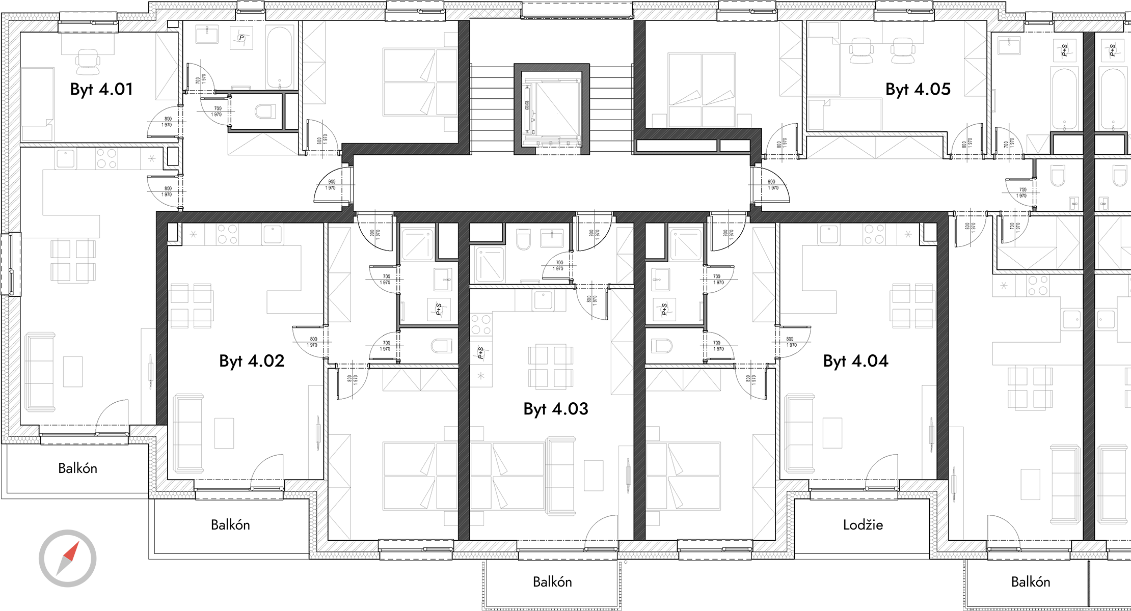
| 4. NP.
|
4.01
|
3+kk
|
71,70
|
5,03
|
kryté pod objektem
|
|
Prodaný
|
| 4. NP.
|
4.02
|
2+kk
|
57,60
|
6,11
|
venkovní
|
|
Prodaný
|
| 4. NP.
|
4.03
|
1+kk
|
36,50
|
4,34
|
venkovní
|
|
Prodaný
|
| 4. NP.
|
4.04
|
2+kk
|
57,80
|
5,30
|
venkovní
|
|
Prodaný
|
| 4. NP.
|
4.05
|
3+kk
|
81,80
|
4,03
|
venkovní
|
|
Prodaný
|
| 4. NP.
|
4.06
|
3+kk
|
81,80
|
4,03
|
kryté pod objektem
|
|
Prodaný
|
| 4. NP.
|
4.07
|
2+kk
|
57,80
|
5,30
|
venkovní
|
|
Prodaný
|
| 4. NP.
|
4.08
|
1+kk
|
36,50
|
4,34
|
venkovní
|
|
Prodaný
|
| 4. NP.
|
4.09
|
2+kk
|
57,60
|
6,11
|
venkovní
|
|
Prodaný
|
| 4. NP.
|
4.10
|
3+kk
|
71,70
|
5,03
|
kryté pod objektem
|
|
Prodaný
|