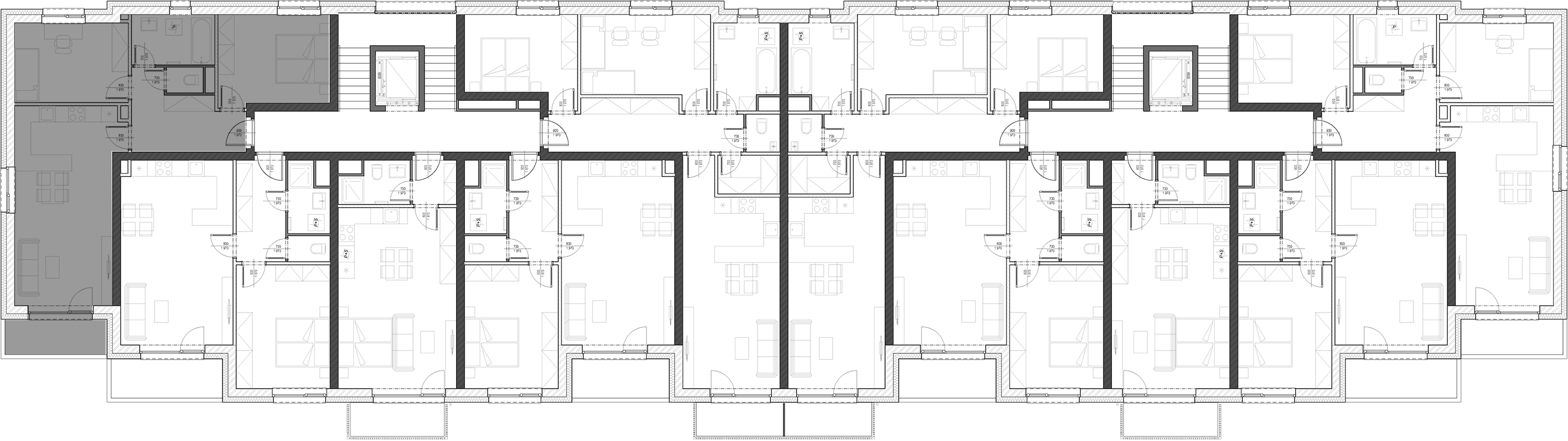
Byt 2.01
POZNÁMKA: Plochy jednotlivých místností jsou pouze orientační s toleranci +/- 3%. Vyobrazené zařízení (kuchyňská linka, el. spotřebiče, vestavěné skříně, nábytek, apod.) není součástí vybavení bytu.
Stav Rezervovaný
Podlahová plocha bytu 71.7 m2
Chodba 9,16 m2
Obývací pokoj + KK 27,46 m2
Ložnice 13,12 m2
Pokoj 12,14 m2
Koupelna 5,07 m2
WC 1,07 m2
Celková plocha místností 68,02 m2
Balkón 5,03 m2
Sklep v ceně bytu
Venkovní parkovací stání v ceně bytu

Pozice bytu v budově

Pozice bytu 2.01 v budově