Kliknutím vyberte část domu
Výběr části domu 1. část domu2. část domu
Výběr bytu
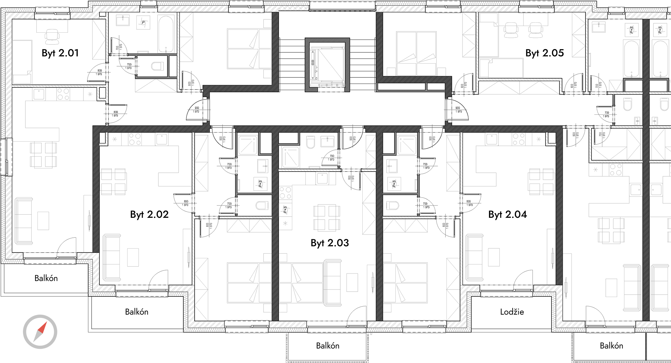
Byt 2.05
Cena:5.360.000,- Kč
Dispozice:3+kk
Plocha:81.8 m2
Stav:Volný
DetailMám zájem
Byt 2.04
Cena:4.440.000,- Kč
Dispozice:2+kk
Plocha:57.8 m2
Stav:Volný
DetailMám zájem
Byt 2.03
Dispozice:1+kk
Plocha:36.5 m2
Stav:Rezervovaný
Detail
Byt 2.02
Cena:4.420.000,- Kč
Dispozice:2+kk
Plocha:57.6 m2
Stav:Volný
DetailMám zájem
Byt 2.01
Dispozice:3+kk
Plocha:71.7 m2
Stav:Rezervovaný
Detail
Pokračování byty 6 - 10
Budova
Podlaží
Dispozice
Stav
Byt Dispozice Cena s DPH Stav
2.01 3+kk Rezervovaný
2.02 2+kk 4.420.000,- Kč Volný
2.03 1+kk Rezervovaný
2.04 2+kk 4.440.000,- Kč Volný
2.05 3+kk 5.360.000,- Kč Volný
2.06 3+kk Prodaný
2.07 2+kk 4.440.000,- Kč Volný
2.08 1+kk Prodaný
2.09 2+kk 4.420.000,- Kč Volný
2.10 3+kk Rezervovaný