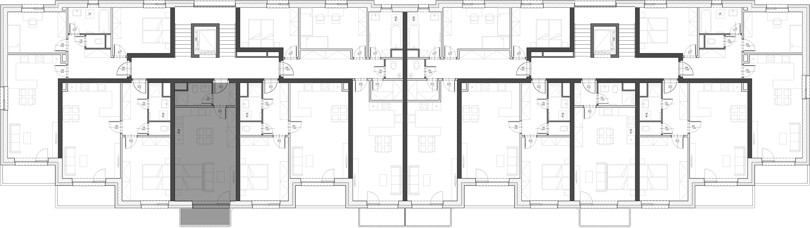
Byt 2.03
POZNÁMKA: Plochy jednotlivých místností jsou pouze orientační s toleranci +/- 3%. Vyobrazené zařízení (kuchyňská linka, el. spotřebiče, vestavěné skříně, nábytek, apod.) není součástí vybavení bytu.
Stav Rezervovaný
Podlahová plocha bytu 36.5 m2
Chodba 2,52 m2
Obývací pokoj + KK 29,25 m2
Koupelna 3,24 m2
Celková plocha místností 35,01 m2
Balkón 4,34 m2
Sklep v ceně bytu
Venkovní parkovací stání v ceně bytu

Pozice bytu v budově

Pozice bytu 2.03 v budově