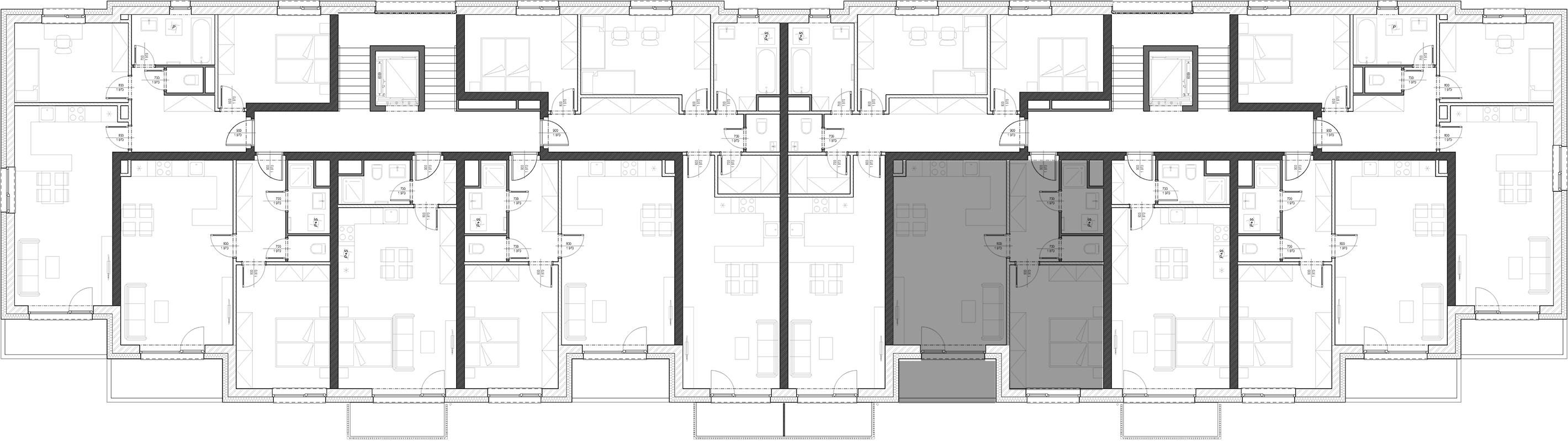
Byt 2.07
POZNÁMKA: Plochy jednotlivých místností jsou pouze orientační s toleranci +/- 3%. Vyobrazené zařízení (kuchyňská linka, el. spotřebiče, vestavěné skříně, nábytek, apod.) není součástí vybavení bytu.
Stav Volný
Podlahová plocha bytu 57.8 m2
Chodba 6,59 m2
Obývací pokoj + KK 28,30 m2
Ložnice 15,56 m2
Koupelna 3,05 m2
WC 1,24 m2
Celková plocha místností 54,74 m2
Lodžie 5,30 m2
Sklep v ceně bytu
Venkovní parkovací stání v ceně bytu
Cena: 4.440.000,- Kč Cena celkem včetně DPH

Pozice bytu v budově

Pozice bytu 2.07 v budově