POZNÁMKA: Plochy jednotlivých místností jsou pouze orientační s toleranci +/- 3%. Vyobrazené zařízení (kuchyňská linka, el. spotřebiče, vestavěné skříně, nábytek, apod.) není součástí vybavení bytu.
| Stav | Volný |
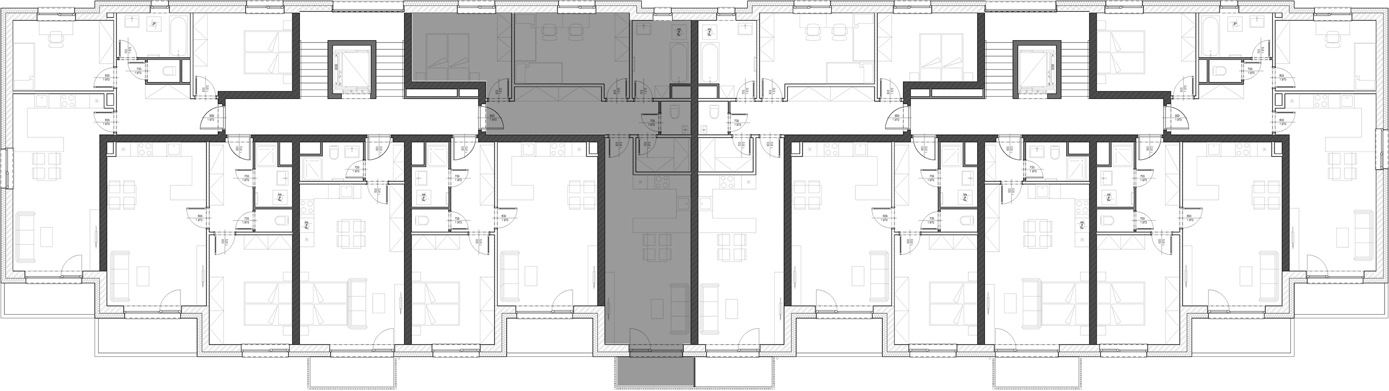
| Podlahová plocha bytu | 81.8 m2 |
| Chodba | 11,91 m2 |
| Obývací pokoj + KK | 27,15 m2 |
| Ložnice | 12,17 m2 |
| Pokoj | 14,53 m2 |
| Šatna | 3,05 m2 |
| Koupelna | 6,77 m2 |
| WC | 1,32 m2 |
| Celková plocha místností | 76,90 m2 |
| Balkón | 4,03 m2 |
| Sklep | v ceně bytu |
| Venkovní parkovací stání | v ceně bytu |
Cena: 5.360.000,- Kč
Cena celkem včetně DPH